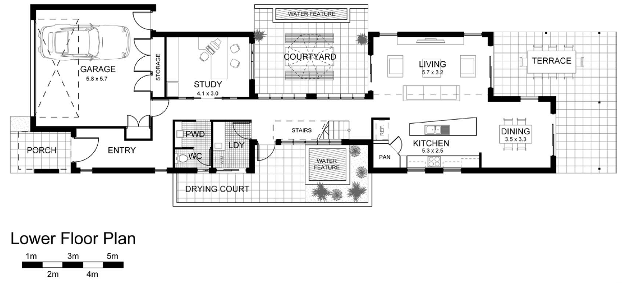
post renovations, we would love to build our next home. Our brief is simple.. simple living with a place for everything and everything in its place.. Smaller in size but big in light and space. I love void's to give perspective to small space.
There is a local builder who design small lot homes and has a design with a void over the living room. Check out http://www.smalllothomes.com/index_flash.html






No comments:
Post a Comment